~当物件をご検討中のお客様へ~
2026年1月13日現在、商談中でございますのでご承知おきくださいませ。
*-*-*-*-*-*-*-*-*-*-*-*-*-*-*-*-*
地下室付き規格プラン住宅『caveカーヴ』中古住宅
\\お値下げしました//
●販売価格 3,780万円 ⇒ 3,280万円になります!
松本市のイオンタウンまで車で約5分の好立地。
閑静な住宅地の一角です。
● 子育て世代に嬉しい間取り
● 松本市周辺でお住まいをお探しの方
● 長野県移住をご検討中の方にもおすすめ
「気になっていたけど・・・」というかたは
ぜひこの機会に内覧しませんか?
お気軽にお申し込みください!
■□━━━━━━━━━━━━━━□■
地下室付き規格プラン住宅『caveカーヴ』
中古住宅販売 情報
・場所/松本市村井町北1丁目 付近のグーグルマップ
⇒https://maps.app.goo.gl/CdDpp5krrPxDSHUq8
≪ご予約制です≫
公式ホームページお問合せから、
または、お電話ください♪
代表TEL 026-263-0263
\\素敵なお家の特徴//
●二階建てのモノトーン調シンプルモダンな外観
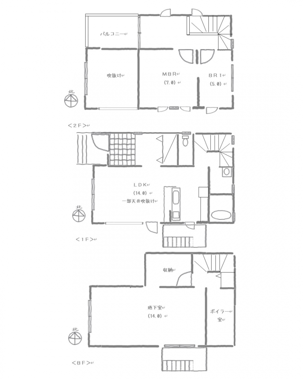
●広々14畳の大空間地下室があります!
プロジェクター&スクリーン完備!!
●築6年のとっても綺麗なお家です
●3SLDKの間取りです
\\高性能住宅の秘密//
●●高性能グラスウール90mm、エクセルシャノン製ペアガラス使用
●●G2仕様の断熱性能はミツヤジーホーム標準仕様です
●●火災に強いツーバイフォー工法(2×4)
【不動産情報サイトに詳しい情報掲載中!】
ココスマ松本
https://matsumoto.fudousan.co.jp/details/161210437261/q?rid=zYFbJ6Et8rsh3CGK
アットホーム
https://www.athome.co.jp/kodate/6984941871/?relalink=BB
*-*-*-*-*-*-*-*-*-*-*-*-*-*-*-
しつこい勧誘・無理な営業は一切いたしません。<(_ _)>
お気軽にお申し付けください。

.jpg)



